C I.II.III.IV. A
Type
ARCHIVES
Titre(s)
Maisons de la famille Delobe, avenue de l’Arbalète 40 et 42 à Bruxelles
(1_BRUNF-BRUGA-P-1937.01)
Accès à la consultation
Accès complet, Autorisé
Période chronologique couverte
1937-1939
Zone géographique
Domaine thématique
09-architecture hospitalière, assistance et protection sociale
Producteur
Période chronologique couverte
1937-1939
Description
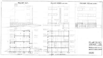
L'ensemble situé avenue de l'Arbalète 40 et 42 à Watermael-Boitsfort, terminé en 1939, a été dessiné par l'architecte Gaston Brunfaut pour une même famille, à savoir le Professeur Delobe domicilié au n°42 et sa mère au n°40.
Les façades arrière s'ouvrent largement sur un jardin commun, aujourd'hui séparé.
Cet ensemble présente un style moderniste pur. La composition des façades ainsi que le pian intérieur sont déterminées par la structure portante de l'immeuble.
Une zone de recul plantée permet une lecture claire des deux immeubles depuis l'espace public. L'enveloppe extérieure présente une élévation plane réalisée en enduit Quartz et ciment blanc percé de baies en bandeau. La cage d'escalier est marquée, dans les deux immeubles, par une large verrière réalisée en briques de verre.
A l'intérieur, les deux maisons présentent un parti clair et rationnel concentrant les dégagements et les locaux de service (hall, cage d'escalier, cuisine, toilettes) afin de disposer de pièces spacieuses et lumineuses pour les séjours et pièces à vivre.
Le n°40 possède un auvent protégeant l'entrée située à l'angle du bâtiment. D'après les pians d'archivé, l'intérieur s'agence comme suit : en sous-sol le garage est suivi de la cave. La buanderie, la citerne et la cave à charbon occupent l'espace de droite. Le rez-de-chaussée est composé du hall d'entrée à l'angle, de l'escalier menant aux étages, d'une cuisine ainsi que d'un grand living réservant un coin à déjeuner dans l'angle arrière de l'immeuble permettant une vue sur le grand jardin. Les archives montrent également la cuisine CUBEX réalisée sur mesure. Le premier étage comporte deux chambres, une pièce de couture et une salle de bain. Le dernier niveau, plus petit, dégage une terrasse à l'arrière desservant un studio et une chambre.
Bien qu'une demande ait été faite, la visite de l'immeuble n'a pu être réalisée afin de déterminer les modifications subies depuis sa construction.
Le n°42, construit pour le professeur Delobe, a d'abord fait l'objet d'un autre projet, plus modeste et revu afin d'aboutir à la solution présente aujourd'hui. Précédée d'un jardinet à rue avec chemin d'accès et rampe d'accès au garage en sous-sol, la maison comprend initialement un sous-sol semi-enterré composé de caves, buanderie, chaufferie, toilette et garage ; au rez-de-chaussée , l'entrée avec WC, fa cuisine, le séjour-salle à manger avec rotonde ouverte sur le jardin et coin bibliothèque côté rue ; au premier étage, trois chambres à coucher, un dégagement côté rue, un cabinet de toilette et une salle de bains et au second étage, un atelier, une chambre à coucher, une salle de bains et un solarium. L'ensemble est desservi par un escalier semi-hélicoïdal éclairé par une paroi de briques de verres en façade à rue. Au rez-de-chaussée, en façade est, une terrasse couvre la cour anglaise. Le jardin s'ouvre au loin vers la forêt de Soignes. Notons encore quelques arbres de grande taille, dont un remarquable Araucaria.
Propriété de la famille Delobe jusqu'en 2007, la maison a subi plusieurs modifications, le remplacement d'un châssis au rez-de-chaussée en façade nord par des briques de verre ou l'aménagement d'une cuisine au second étage. La terrasse du rez-de-chaussée a été modifiée et une piscine thérapeutique de petite taille a été construite contre la cour anglaise vers 1960. En 1964, la verrière de la cage d'escalier a été entièrement dénaturée par des briques de verre à double parois.
Lors de la rénovation menée en 2008/2009, certaines modifications ont été apportées au plan initial, comme la refonte du hall au rez-de-chaussée pour en faire un espace plus vaste, et la rationalisation des plans des étages, particulièrement en façade ouest. Les salles de bains ont été redessinées, en partie autour d'appareils existants et de principes et matériaux de l'époque. Par ailleurs, les parquets, planchers et enduits ont été restaurés, ainsi que les châssis en bois ouvrants et pivotants ; l'escalier en bois et son lambris ont été simplement nettoyés. Les meubles d’origines de la cuisine d'origine CUBEX ont été conservés en grande partie, et les carrelages muraux récupérés. Notons également la restitution à l'identique - sur base des photos d’époques des éléments de façade disparus ou modifiés, telle la verrière de la cage d'escalier en briques de verres NEVADA, le châssis modifié au rez-de-chaussée ou encore la structure de la terrasse arrière.
Arrêté du Gouvernement de la Région de Bruxelles-Capitale en date du 18 avril 2013.
http://doc.patrimoine.brussels/REGISTRE/AG/046_004.pdf
Maison classée le 18 avril 2013
Nature du projet
04-nouvelle construction et création
Typologie Archives
Documents graphiques
Archives écrites
Archives écrites
Localisation des archives
Ixelles